Info
- Atualizado:
- Junho 29, 2022
- 4 Quartos
- 2 Casas de Banho
- 176.00 m2
Descrição
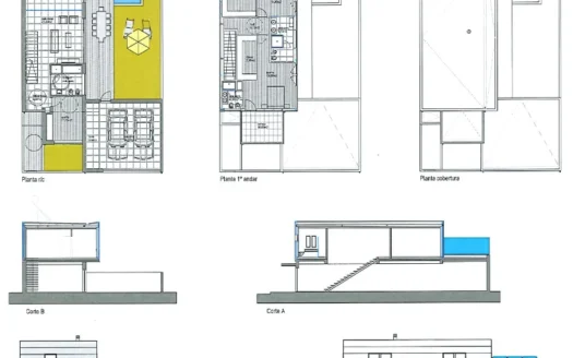
Moradia unifamiliar em banda de tipologia T4 com garagem, boa luminosidade, ótima exposição solar com 176m2 situada na Urb. José Albino em Tavira.
É constituída por 3 pisos.
R/C
– Hall;
– 1 casa de banho renovada;
– Acesso à garagem;
– 3 Quartos;
– Despensa;
1º piso:
– Sala com lareira e soalho em madeira;
– Cozinha com acesso a um pátio exterior com 50m2;
– 1 casas de banho renovada;
– 1 quarto;
2ºpiso:
– Sótão;
– Terraço;
Notas:
– Ótima exposição solar, virada a sul.
– Armários embutidos;
– Varandas;
– Terraço com vista sobre a cidade com 15m2;
– Garagem ampla com 1 lugar de estacionamento;
– Ano de construção 1997;
– Ar condicionado.
Não perca esta oportunidade!
















